23910 Basin Harbor Court, Tehachapi, CA 93561
23910 Basin Harbor Court
$445,000
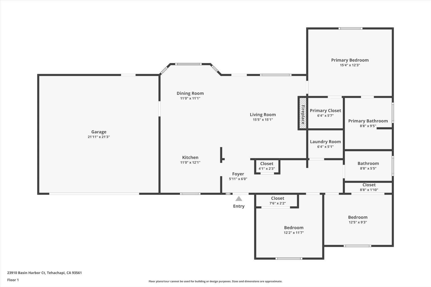
Experience peaceful living on the 8th tee of the Bear Valley Springs golf course in this beautifully maintained and freshly updated home. With 3 bedrooms, 2 bathrooms, and a sought-after split-wing layout, this property offers comfort, space, and stunning natural surroundings.Step inside to a freshly painted interior filled with natural light and a sense of calm. The open-concept design flows effortlessly from the upgraded kitchen to the spacious living areaideal for quiet mornings, cozy evenings, or hosting loved ones in a relaxed setting.The primary suite provides a private retreat, while two additional bedrooms offer flexibility for guests, a home office, or hobbies. Thoughtful finishes throughout make this home both inviting and practical.Outside, enjoy beautifully landscaped front and back yards, a covered patio perfect for unwinding, and a backyard gate that opens directly to the golf coursebringing nature just a few steps from your door. An attached two-car garage and separate golf cart garage add convenience and charm.Located within the gated community of Bear Valley Springs, residents enjoy access to scenic trails, equestrian facilities, lakes, and a welcoming, close-knit atmosphere. If you're dreaming of a slower pace and connection to the outdoors, this is the place to call home.

3
beds

2
baths

1,315 Sq.Ft. LIVING AREA

0.35 Acres lot

Terri  Juergens

Terri Juergens

Features & Amenities

Interior

  • total bedrooms3
  • Total bathrooms2
  • full bathrooms2

Area & Lot

  • Status Sold
  • Living Area1,315 Sq.Ft.
  • Lot Area0.35 Acres
  • MLS® ID9992988
  • TypeResidential
  • YEAR BUILT2002
  • NeighborhoodBear Valley Springs

Exterior

  • STORIES1
  • roofComposition

Financial

  • Sales Price$445,000
  • Zoning E1/4

Bear Valley Springs

Embedded within 25,000 acres of oak-covered valleys and pine-covered mountains.

Explore

Work With Us

Team Terri J has the technology and commitment to assist you with your home buying or selling process, making your transaction a pleasant and exciting experience.

Follow Us on Instagram