28221 Cumberland Road, Tehachapi, CA 93561
Extraordinary Bear Valley Springs Estate | 28221 Cumberland Road
$1,275,000

Luxury Bear Valley Springs Estate with Guest Quarters & Panoramic Views
Offered at $1,275,000

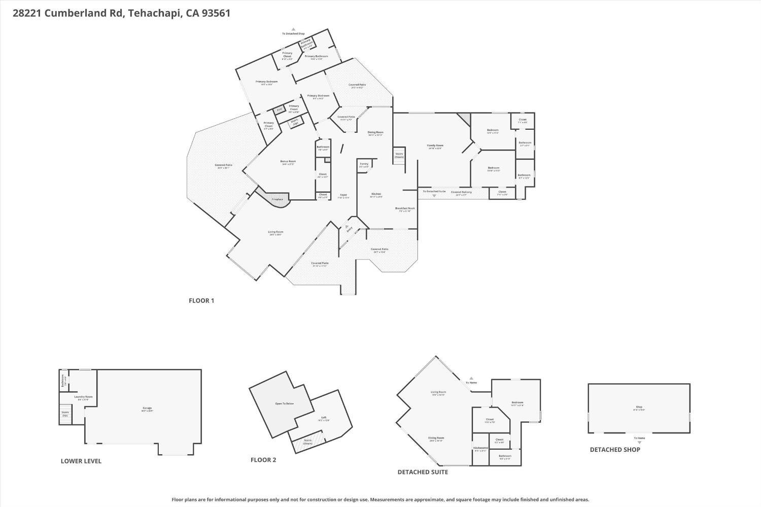
Set on 3.52 acres in the heart of Bear Valley Springs, this extraordinary estate offers the perfect blend of privacy, space, and elevated mountain living. With 5 bedrooms, 5 bathrooms, and approximately 5,072 square feet, this home delivers both grand scale and everyday comfort in a setting that feels peaceful and expansive.

The great room is a showstopper, featuring vaulted ceilings and custom floor-to-ceiling windows that frame sweeping mountain views. Natural light pours into the home, creating an inviting atmosphere that feels warm, open, and connected to the outdoors. Multiple indoor fireplaces add charm and ambiance, while thoughtful design throughout the home makes it ideal for both entertaining and relaxed daily living.

The kitchen is well-appointed with modern appliances, including a dishwasher, microwave, gas range/oven, and garbage disposal, and is complemented by a breakfast room, formal dining area, and spacious great room. Additional functional spaces include a home office, laundry room, and mud room, offering convenience and flexibility for a variety of lifestyles.

A standout feature of this property is the separate, fully equipped guest quarters, providing incredible versatility. Whether used for extended family, visiting guests, or a private living space, this second residence adds exceptional value and flexibility.

Outdoor living is equally impressive. Enjoy private patios and deck areas, an exterior fireplace, mature oak and shade trees, a garden area, and a dog run — all set against a backdrop of stunning natural scenery. The property includes RV parking, split rail fencing, and expansive open space to enjoy the best of Bear Valley Springs living.

For those who value storage, workspace, or car capacity, the home offers an oversized attached 6-car garage along with a workshop, making it ideal for hobbyists, collectors, or anyone needing extra room.

Additional features include central air conditioning, propane heating, public water, septic, and a leased solar system.

This is a rare opportunity to own a true estate-style property in Bear Valley Springs — combining luxury, privacy, and breathtaking views in one remarkable setting.

To schedule a private showing, contact Terri Juergens at (661) 303-6868.

5
beds

5
baths

5,072 Sq.Ft. LIVING AREA

3.52 Acres lot

Terri  Juergens

Terri Juergens

View Virtual Tour

Features & Amenities

Interior

  • total bedrooms5
  • Total bathrooms5
  • full bathrooms5

Area & Lot

  • Status For Sale
  • Living Area5,072 Sq.Ft.
  • Lot Area3.52 Acres
  • MLS® ID9993494
  • TypeResidential
  • YEAR BUILT1993
  • NeighborhoodBear Valley Springs

Exterior

  • STORIES2
  • roofTile

Financial

  • Sales Price$1,275,000
  • Zoning E1
image

Schedule a Showing

We would love to show you our beautiful property. Please select your preferred date and time below. An agent will be in touch shortly to confirm your appointment.

Schedule a Showing

We would love to show you our beautiful property. Please select your preferred date and time below. An agent will be in touch shortly to confirm your appointment.
Thank you for your interest in 28221 Cumberland Road, Tehachapi, CA 93561. We are reviewing your request and will be in touch shortly!

Mortgage Calculator

Estimate your monthly mortgage payment, including the principal and interest, property taxes, and HOA. Adjust the values to generate a more accurate rate.
All estimates are provided for informational purposes only. Actual amounts may vary.
$0,000 Your Payment 20 15 65
$0,000 Your Payment

Bear Valley Springs

Embedded within 25,000 acres of oak-covered valleys and pine-covered mountains.

Explore

Work With Us

Team Terri J has the technology and commitment to assist you with your home buying or selling process, making your transaction a pleasant and exciting experience.

Follow Us on Instagram